Imagine 77

Botanica/Aeroport, apartament cu 1 camera, bloc nou, autonomă, prima linie!

ID: P12659 Chisinau, Botanica 1
54.900€
Descriere
Apartament cu potențial în sectorul Botanica, în apropiere de Aeroport, Chișinău!

Aveți oportunitatea de a achiziționa un apartament într-un bloc nou, în apropierea Aeroportului Chișinău.
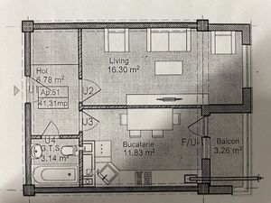
Această proprietate cu 1 camera, la momentul actual în varianta albă, reprezintă o investiție excelentă datorită potențialului său de a fi replanificat într-un dormitor și living, oferind posibilitatea de a crea un spațiu personalizat și confortabil pentru viitorii săi proprietari.

Detalii despre apartament:

-- Situat într-o zonă cu acces ușor către Aeroport și cu conexiuni rapide către alte zone din oraș, acest apartament se bucură de avantajele unei locații bine poziționate, oferind acces la facilități importante precum magazine, restaurante și mijloace de transport.

-- Cu o suprafață de 42 de metri pătrați, acest apartament poate fi reconfigurat dintr-o cameră într-un dormitor și living, oferind libertatea de a adapta spațiul conform preferințelor personale.

-- Situat la etajul 1 al unui bloc nou, această proprietate reprezintă o oportunitate excelentă pentru cei care caută un spațiu locativ ce poate fi modelat după propriile gusturi și necesități.

Beneficii suplimentare:
-- Potențial de amenajare flexibilă.
-- Infrastructură modernă și calitate în construcție.
-- Zonă în creștere cu perspective de dezvoltare.

Pentru a afla mai multe detalii sau pentru a programa o vizită și a vedea această proprietate cu potențial, vă rugăm să ne contactați!
Caracteristici
  • ID:P12659
  • Nr. camere:1
  • S. construita:42.00 mp
  • Etaj:Etaj 1
  • Nr. bucatarii:1
  • Nr. bai:1
  • Nr. balcoane:1
  • Regim inaltime:P+10
Curent
Apa
Canalizare
Gaz
Curent trifazic
CATV
Acces internet
Fibra optica
Centrala proprie
Incalzire pardoseala
Calorifere
Izolatie Exterior
Bloc izolat termic
Ferestre PVC
Usa intrare Metal
Apometre
Contor gaz
Interfon
Lift
Spatii agrement
Curte
Localizare
Meșina Vasile
Senior partner
Contacteaza-ma